Na operação de repuxo obtém-se peças ocas partindo-se de placas ou chapas planas.
Durante a operação de repuxo o material sobre esforços de compressão (nas bordas da matriz) e esforços de estiramento.
Na operação de repuxo praticamente a espessura da peça se mantém igual a do Blanque.
Peças com formas de corpo de revolução, o blanque pode ser calculado de duas formas: pelo processo de igualdade das áreas ou pelo método do baricentro do perímetro.
Exemplo:
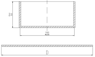
Calcular o diâmetro do blanque para a peça abaixo:
Processo pela igualdade das áreas
Ou seja
ou ainda:
então temos:
Cálculo pelo centro de gravidade das figuras:
Este processo é o mais utilizado pois pode utilizar a fórmula D
para qualquer que seja o repuxo que quisermos determinar o diâmetro do blanque.
A sequência do cálculo é:
1º - Dividir o repuxo em figuras regulares como cilindros, discos, anéis, etc.
2º - Determinar o C.G de cada figura e a distância destes até o centro da peça (Ri)
3º - Determinar o comprimento desenvolvido de cada parte na seção mostrada (Li)
4º - Aplica a fórmula:
Peças com grandes profundidades de repuxo devem ser repuxados em várias operações:
O número das operações depende da profundidade de repuxo e das características de estampabilidade do material da chapa.
Coeficiente de Repuxo - O coeficiente de repuxo fornece a menor relação entre o diâmetro do punção e o diâmetro do blanque (ainda peça intermediária) em função do material da chapa.
Exemplo 1: Determinar o diâmetro do disco e o número de operações necessárias para obtermos um recipiente cilíndrico de chapa de aço inoxidável com as dimensões da figura;
Obs.: Deixar 3% de sobremetal do blanque para usinagem posterior da altura, arredondar para o número inteiro mais próximo.
Pela tabela temos:
m=0,55
m1=0,85
Diâmetro do blanque
Número de operações:
Durante a operação de repuxo o material sobre esforços de compressão (nas bordas da matriz) e esforços de estiramento.
Na operação de repuxo praticamente a espessura da peça se mantém igual a do Blanque.
Cálculo do Diâmetro do BLANQUE
Peças com formas de corpo de revolução, o blanque pode ser calculado de duas formas: pelo processo de igualdade das áreas ou pelo método do baricentro do perímetro.
Exemplo:
Calcular o diâmetro do blanque para a peça abaixo:
Processo pela igualdade das áreas
Ou seja
ou ainda:
então temos:
Método do Baricentro do Perímetro (Processo Analítico)
Cálculo pelo centro de gravidade das figuras:
Este processo é o mais utilizado pois pode utilizar a fórmula D
para qualquer que seja o repuxo que quisermos determinar o diâmetro do blanque.A sequência do cálculo é:
1º - Dividir o repuxo em figuras regulares como cilindros, discos, anéis, etc.
2º - Determinar o C.G de cada figura e a distância destes até o centro da peça (Ri)
3º - Determinar o comprimento desenvolvido de cada parte na seção mostrada (Li)
4º - Aplica a fórmula:

Repuxo em vários estágios
Peças com grandes profundidades de repuxo devem ser repuxados em várias operações:
O número das operações depende da profundidade de repuxo e das características de estampabilidade do material da chapa.
Coeficiente de Repuxo - O coeficiente de repuxo fornece a menor relação entre o diâmetro do punção e o diâmetro do blanque (ainda peça intermediária) em função do material da chapa.
Exemplo 1: Determinar o diâmetro do disco e o número de operações necessárias para obtermos um recipiente cilíndrico de chapa de aço inoxidável com as dimensões da figura;
Obs.: Deixar 3% de sobremetal do blanque para usinagem posterior da altura, arredondar para o número inteiro mais próximo.
Pela tabela temos:
m=0,55
m1=0,85
Diâmetro do blanque
Número de operações:
































d, costuma-se trabalhar com
r(tensão de ruptura).
10 não se aplica esta definição.








